Negozio in affitto

Vobarno, Via Chiusure
€ 3.300 / mese
5 locali 5 locali
400 Mq 400 Mq
3 bagni 3 bagni

Negozio in affitto

Vobarno, Via Chiusure

Descrizione annuncio

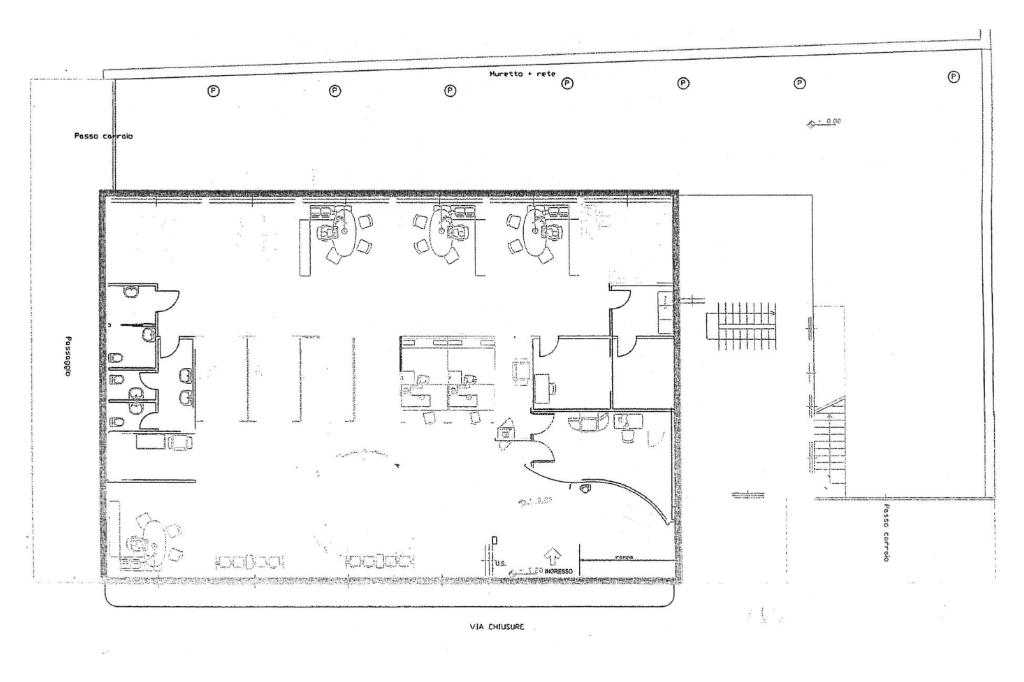
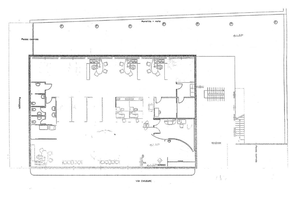
Proponiamo in locazione un locale ad uso commerciale sito in Via Chiusure nel comune di Vobarno

La superficie del locale è di circa 400 mq con porticato esterno di pertinenza

Servizi igienici: presenti tre servizi igienici con antibagno

Impianti: presente impianto di riscaldamento e raffrescamento termo autonomo a pompe di calore

Visibilità: l’immobile è dotato di ampie vetrine poste fronte strada

Spese condominiali: assenti

Canone di locazione: € 3.300,00/mese oltre IVA

L’immobile è attualmente locato ad un istituto di credito fino al 31.01.2026, entro tale data il locale potrà essere consegnato completo di arredi. Successivamente alla scadenza del contratto di locazione, l’immobile verrà rilasciato vuoto.

Il paese si trova al centro della Valle Sabbia, tra i comuni di Roè Vociano e Sabbio Chiese: questo favorevole posizionamento ed il buon grado occupazionale della zona ha consentito lo sviluppo di un buon tessuto commerciale formato principalmente da negozi tradizionali e centri della moderna distribuzione. Il paese è il secondo per numero di abitanti della valle; è vissuto e frequentato dai cittadini delle località limitrofe per la quantità di servizi che offre.

Mostra tutto

Nelle vicinanze

Trasporto pubblico Trasporto pubblico
Trasporto pubblico
180 m
Scuole Scuole
Scuola Primaria
180 m
Scuola Secondaria di Primo Grado Angelo Migliavacca
260 m
ITIS Perlasca
1,1 Km
Scuole
2,5 Km
Farmacia Farmacia
Farmacia Comunale
140 m
Farmacia
300 m
Farmacia Rigattieri Dr. Stefano
2,3 Km
Supermercati Supermercati
Italmark
70 m
Family Market
900 m
Eurospin
1,0 Km
LD
1,2 Km
Supermercati
2,1 Km
Negozi Negozi
Negozi
260 m
Panificio Righetti Domenico
1,6 Km
Ellegi Service. Salute ed igiene sul lavoro
1,9 Km
Panificio Rugenini
2,2 Km
Il Cucciolo Abbigliamento
2,2 Km
Bar Bar
Bar
930 m
Tacho Bar
2,3 Km
Caffè della piazza
2,4 Km
Ristoranti Ristoranti
Le Vele
480 m
Corona
1,7 Km
Agriturismo ai Traversanc
2,0 Km
Trattoria Arcadia
2,1 Km
Bar Trattoria Ricomilla
2,2 Km
Mostra tutto

Caratteristiche

Rif.:
61139855
Piano:
Terra di 1
Totale piani:
1
Posti auto:
10
Condizionamento:
Autonomo
Ascensore:
No
Mostra tutto
Prezzo Prezzo
€ 3.300 / mese
Spese annue Spese annue
€ 0

Altre caratteristiche

Descrizione dei locali
Bagno antibagno

Classe Energetica

Questo immobile è esente da classe energetica
Anno di costruzione:
1980
Riscaldamento:
Autonomo
Tipo impianto:
Ad aria
Tipo alimentazione:
Aria

Ti interessa visionare l'immobile?

Fissa un appuntamento  Fissa un appuntamento

Richiedi informazioni

Clicca su Leggi per aprire l'informativa
* Questi campi sono obbligatori
Affiliato
Industriale Del Benaco Srl
Via Campagnola, 34/G 25080 Manerba Del Garda (BS)

Il nostro staff


  • Francesca Lanzini
    Affiliata

  • Francesco Bellicini
    Affiliato

  • Stefano Ghidini
    Affiliato

  • Asia Gussago
    Coordinatrice

  • Giorgia Majocchi
    Collaboratrice

  • Laura Primerano
    Coordinatrice

  • Susanna Vincenzi
    Collaboratrice
Via Campagnola, 34/G 25080 Manerba Del Garda (BS)
Zona: Moniga Del Garda-Salò-Limone del Garda-Nuvolera Alta-Val Sabbia
Mostra su mappa
Affiliato
Industriale Del Benaco Srl
Via Campagnola, 34/G 25080 Manerba Del Garda (BS)

2026 Tecnocasa Franchising S.p.A. - P. IVA 08365160152 - Via Monte Bianco 60/A 20089 Rozzano (MI). Ogni agenzia ha un proprio titolare ed è autonoma. Privacy policy | Policy utilizzo | Cookie policy