Magazzino in vendita

Vobarno, Via Provinciale Collio
€ 190.000
260 Mq 260 Mq
3 bagni 3 bagni

Magazzino in vendita

Vobarno, Via Provinciale Collio

Descrizione annuncio

Magazzino in vendita sito in Via provinciale nel comune di Vobarno

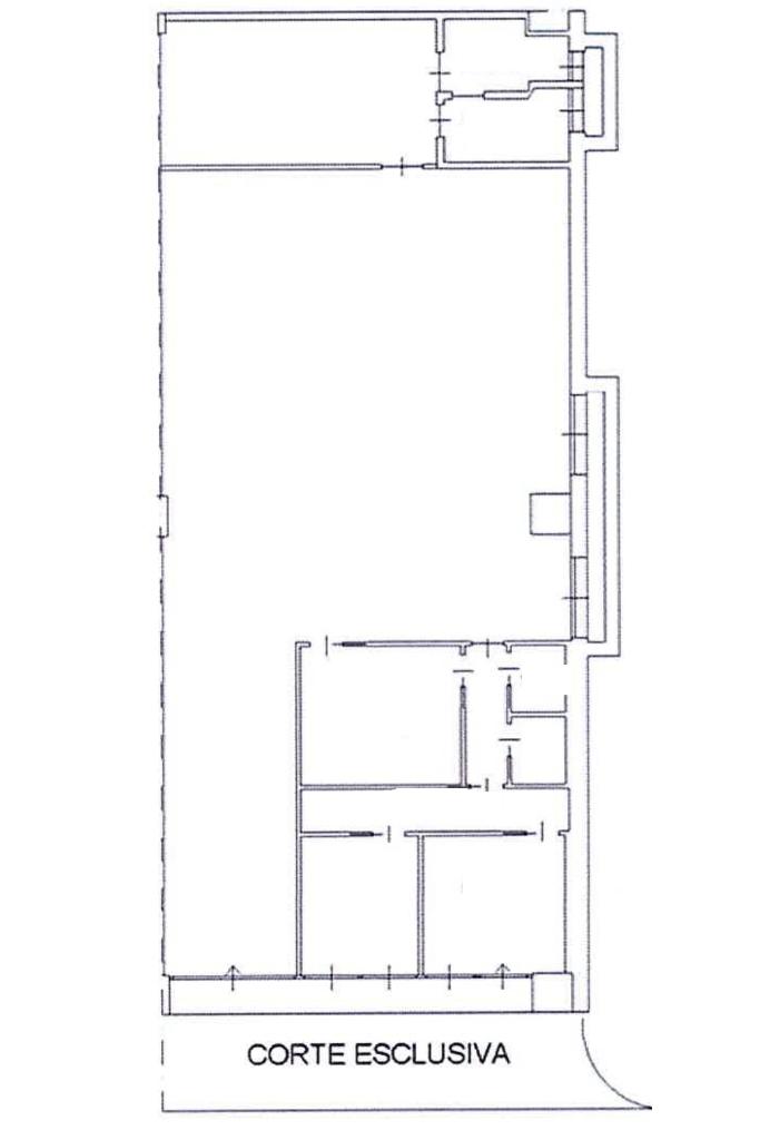
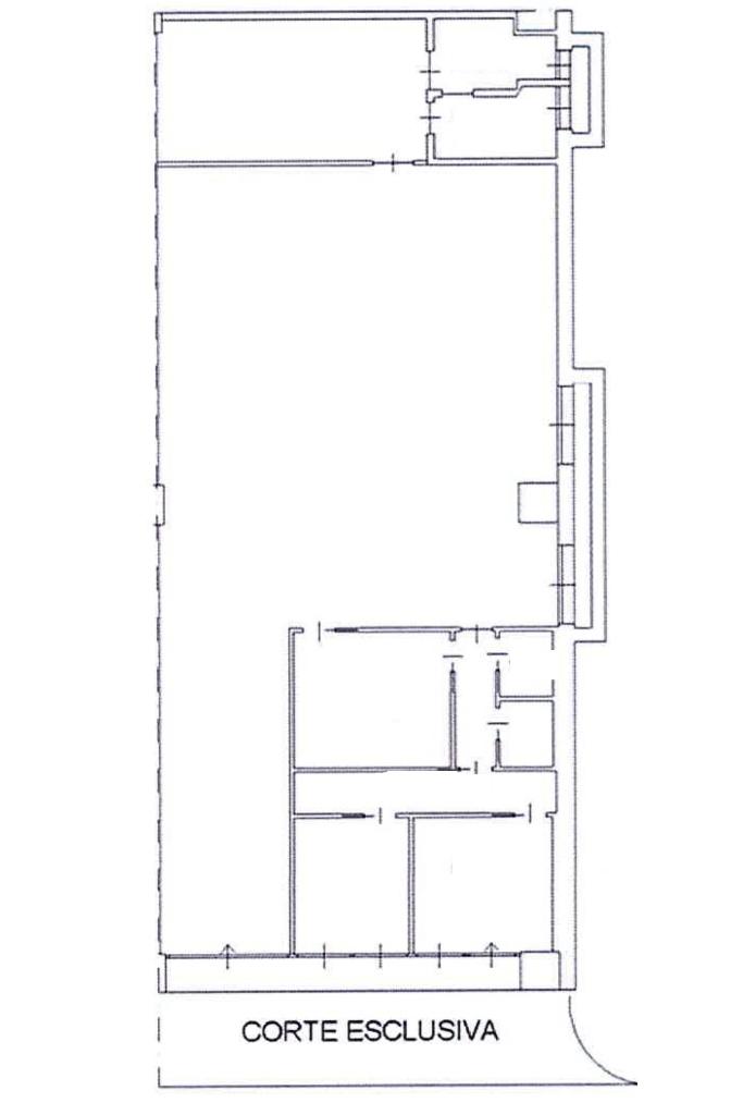
Superficie: la superficie complessiva è di circa 260mq (10,64 m x 24,36 ‎m), così suddivisa:

-circa 23 mq ad uso ufficio suddiviso in 2 blocchi collegati da corridoio

-circa 30 mq composti da deposito ad uso ufficio, bagno e magazzino

-circa 150 mq di capannone ad uso magazzino

-circa 25 mq ad uso deposito

-circa 10 mq ad uso bagno e spogliatoio

Altezza sotto trave: 3 mt

Accesso carraio: 3.10 m x 3 m di altezza

Servizi igienici: presente doppio servizio igienico negli uffici

-presente servizio igienico nel magazzino

Impianti: presente impianto di riscaldamento e raffrescamento nel blocco uffici

- impianto di video sorveglianza e antifurto

Accessibilità: unico accesso pedonale

Spese condominiali: assenti

L'immobile è attualmente accatastato come C/2.

Il paese si trova al centro della Valle Sabbia, tra i comuni di Roè Vociano e Sabbio Chiese: questo favorevole posizionamento ed il buon grado occupazionale della zona ha consentito lo sviluppo di un buon tessuto commerciale formato principalmente da negozi tradizionali e centri della moderna distribuzione. Il paese è il secondo per numero di abitanti della valle; è vissuto e frequentato dai cittadini delle località limitrofe per la quantità di servizi che offre.

Mostra tutto

Nelle vicinanze

Trasporto pubblico Trasporto pubblico
Trasporto pubblico
350 m
Scuole Scuole
Scuola Secondaria di Primo Grado Angelo Migliavacca
220 m
Scuola Primaria
290 m
ITIS Perlasca
830 m
Scuole
2,3 Km
Farmacia Farmacia
Farmacia Comunale
220 m
Farmacia
480 m
Farmacia Rigattieri Dr. Stefano
2,1 Km
Supermercati Supermercati
Italmark
220 m
Family Market
680 m
Eurospin
820 m
LD
1,0 Km
Supermercati
1,8 Km
Negozi Negozi
Negozi
180 m
Panificio Righetti Domenico
1,4 Km
Ellegi Service. Salute ed igiene sul lavoro
1,7 Km
Panificio Rugenini
2,0 Km
Il Cucciolo Abbigliamento
2,0 Km
Bar Bar
Bar
700 m
Tacho Bar
2,1 Km
Caffè della piazza
2,2 Km
Ristoranti Ristoranti
Le Vele
660 m
Corona
1,5 Km
Bar Trattoria Ricomilla
1,9 Km
Pizzeria Bar Casalda
2,0 Km
Agriturismo ai Traversanc
2,1 Km
Mostra tutto

Caratteristiche

Rif.:
61122186
Piano:
Terra di 2
Totale piani:
2
Condizionamento:
Autonomo
Ascensore:
No
Riscaldamento:
Autonomo
Mostra tutto
Prezzo Prezzo
€ 190.000
Rata mutuo Rata mutuo
€ 876 / mese
Spese annue Spese annue
€ 0
Proponi il tuo prezzoProponi il tuo prezzo

Altre caratteristiche

Descrizione dei locali
Bagno antibagno

Classe Energetica

Questo immobile è esente da classe energetica
Anno di costruzione:
1980
Riscaldamento:
Autonomo
Tipo impianto:
Ad aria
Tipo alimentazione:
Aria

Ti interessa visionare l'immobile?

Fissa un appuntamento  Fissa un appuntamento

Richiedi informazioni

* Questi campi sono obbligatori

Calcola il tuo mutuo

Semplice e senza impegno
Anticipo

( % )
Mutuo

( % )

pochi semplici passi

inserisci i tuoi dati
Questionario completato
Grazie per aver richiesto un appuntamento senza impegno con un nostro Consulente del Credito e Assicurativo.

Hai inserito correttamente tutti i dati necessari e a breve riceverai una e-mail con un link da convalidare per inviare i tuoi dati.
Affiliato
Industriale Del Benaco Srl
Via Campagnola, 34/G 25080 Manerba Del Garda (BS)

Il nostro staff


  • Francesca Lanzini
    Affiliata

  • Francesco Bellicini
    Affiliato

  • Stefano Ghidini
    Affiliato

  • Asia Gussago
    Coordinatrice

  • Giorgia Majocchi
    Collaboratrice

  • Laura Primerano
    Coordinatrice

  • Susanna Vincenzi
    Collaboratrice
Via Campagnola, 34/G 25080 Manerba Del Garda (BS)
Zona: Moniga Del Garda-Salò-Limone del Garda-Nuvolera Alta-Val Sabbia
Mostra su mappa
Affiliato
Industriale Del Benaco Srl
Via Campagnola, 34/G 25080 Manerba Del Garda (BS)

2025 Tecnocasa Franchising S.p.A. - P. IVA 08365160152 - Via Monte Bianco 60/A 20089 Rozzano (MI). Ogni agenzia ha un proprio titolare ed è autonoma. Privacy policy | Policy utilizzo | Cookie policy