Ufficio in affitto

Salò, Via Camillo Golgi - Cunettone
€ 500 / mese
1 locale 1 locale
55 Mq 55 Mq
1 bagno 1 bagno

Ufficio in affitto

Salò, Via Camillo Golgi - Cunettone

Descrizione annuncio

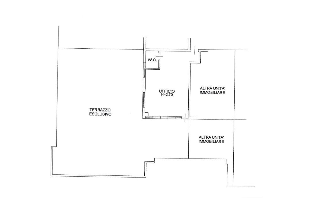
Ufficio in locazione sito in Via Camillo Golgi nel comune di Salò, posto al piano primo del Centro Commerciale Salò 2

Superficie: la superficie complessiva è di circa 55 mq

-presente terrazzo privato di circa 40 mq

Impianti: presente impianto di riscaldamento e raffrescamento

Caratteristiche: open space

-forte luminosità garantita dalle numerose finestre disposte su due lati

-il complesso è dotato di ascensore

Servizi igienici: presente un servizio igienico

Accessibilità: presente un posto auto coperto riservato

L’immobile è stato recentemente ristrutturato.

Disponibile dal 01/09/2025.

La cittadina di Salò è da sempre meta turistica ed al tempo stesso luogo dove gli abitanti della zona del centro e medio lago di Garda approdano per effettuare i loro acquisti. Lungo la strada statale Gardesana si sono sviluppati nel corso degli anni innumerevoli attività commerciali che ospitano gli specialisti della moderna distribuzione ed uffici direzionali. Queste costruzioni sono contraddistinte dalla presenza di parcheggi che consentono alla clientela di reperire facilmente un posto auto, oltre ad essere ottimamente collegati con tutto il reticolo stradale locale.

Mostra tutto

Nelle vicinanze

Trasporto pubblico Trasporto pubblico
Trasporto pubblico
530 m
Raffa
Raffa
1,9 Km
Salò
2,4 Km
Ricariche auto elettriche Ricariche auto elettriche
Gardauno Bocciodromo di Salò
2,0 Km
DriWe SHO Hotel Bellerive
2,0 Km
Scuole Scuole
Scuola Primaria Paritaria San Giuseppe
2,2 Km
Scuola Secondaria di Primo Grado
2,2 Km
Scuola Elementare
2,2 Km
I.T.C.G. Cesare Battisti
2,3 Km
Scuola Secondaria di Primo Grado Gabriele D'Annunzio
2,6 Km
Farmacia Farmacia
Farmacia
60 m
Farmacia de Giuli
2,2 Km
Farmazia Dr. de Paoli
2,4 Km
Ospedali Ospedali
Ospedale di Salò
2,2 Km
Supermercati Supermercati
Carrefour
50 m
Mondo Vegan
230 m
Aldi
460 m
Family Market
1,7 Km
Auchan
1,8 Km
Negozi Negozi
Implicit
40 m
Pan di Via
560 m
La Forneria
2,0 Km
Caprini
2,0 Km
Negozi
2,1 Km
Bar Bar
Bar
320 m
Feeling American Bar
2,1 Km
Da Mario
2,1 Km
bloom - Drink & Food
2,3 Km
Red Clubbing
3,0 Km
Ristoranti Ristoranti
Ristoranti
170 m
Galoloco
400 m
Adamello
440 m
Malibu
660 m
Osteria della Cantina
1,0 Km
Mostra tutto

Caratteristiche

Rif.:
61049260
Piano:
1 di 2 (Piano alto)
Posti auto:
1
Condizionamento:
Autonomo
Ascensore:
No
Riscaldamento:
Autonomo
Mostra tutto
Prezzo Prezzo
€ 500 / mese
Spese annue Spese annue
€ 0

Altre caratteristiche

Descrizione dei locali
Bagno Cieco

Classe Energetica

C
C
C
C
C
C
C
C
C
EP globale non rinnovabile:
138.24 kW h/m² anno
EP invernale del fabbricato:
EP estiva del fabbricato:
Anno di costruzione:
1990
Riscaldamento:
Autonomo
Tipo impianto:
Ad aria
Tipo alimentazione:
Aria

Ti interessa visionare l'immobile?

Fissa un appuntamento  Fissa un appuntamento

Richiedi informazioni

Clicca su Leggi per aprire l'informativa
* Questi campi sono obbligatori
Affiliato
Industriale Del Benaco Srl
Via Campagnola, 34/G 25080 Manerba Del Garda (BS)

Il nostro staff


  • Francesca Lanzini
    Affiliata

  • Francesco Bellicini
    Affiliato

  • Stefano Ghidini
    Affiliato

  • Asia Gussago
    Coordinatrice

  • Giorgia Majocchi
    Collaboratrice

  • Laura Primerano
    Coordinatrice

  • Susanna Vincenzi
    Collaboratrice
Via Campagnola, 34/G 25080 Manerba Del Garda (BS)
Zona: Moniga Del Garda-Salò-Limone del Garda-Nuvolera Alta-Val Sabbia
Mostra su mappa
Affiliato
Industriale Del Benaco Srl
Via Campagnola, 34/G 25080 Manerba Del Garda (BS)

2026 Tecnocasa Franchising S.p.A. - P. IVA 08365160152 - Via Monte Bianco 60/A 20089 Rozzano (MI). Ogni agenzia ha un proprio titolare ed è autonoma. Privacy policy | Policy utilizzo | Cookie policy