Magazzino in vendita

Roè Volciano, Via Goffredo Mameli
€ 220.000
428 Mq 428 Mq

Magazzino in vendita

Roè Volciano, Via Goffredo Mameli

Descrizione annuncio

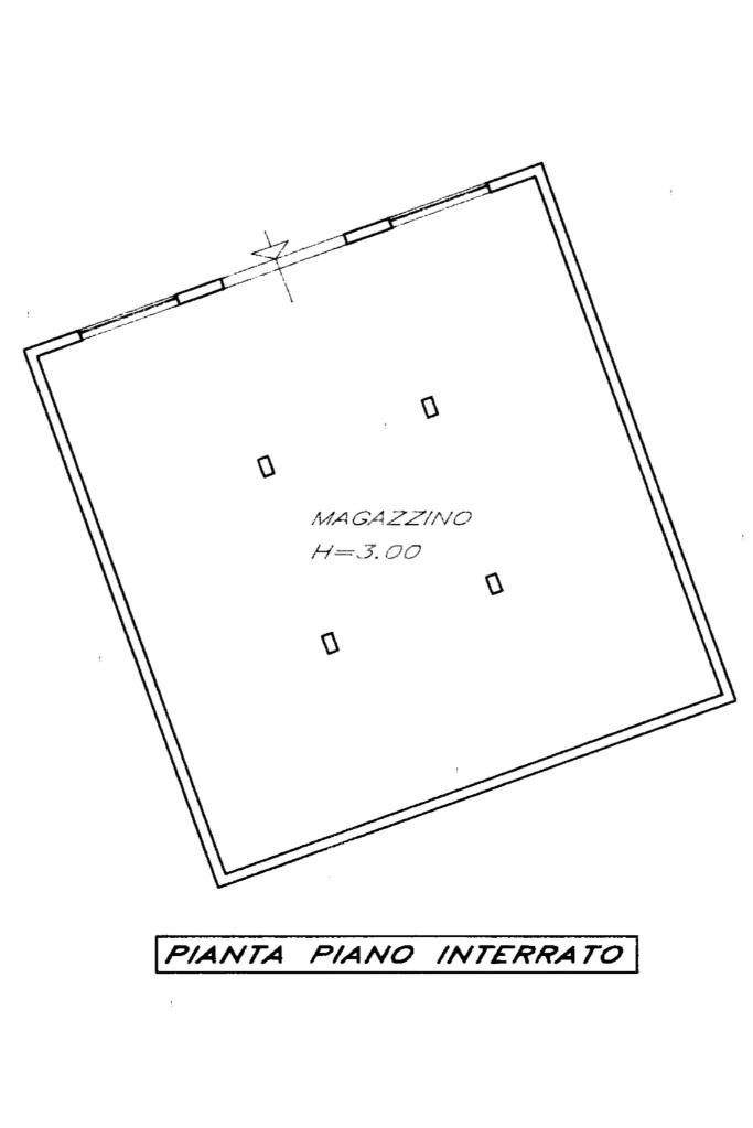
Magazzino seminterrato in vendita sito in Via Goffredo Mameli nel comune di Roè Volciano

Superficie: la superficie complessiva del magazzino è di circa 428 mq con annesso un lotto di terreno agricolo di circa 2.375 mq

Misure magazzino: altezza portone 3,5 m

-larghezza portone 4,5 m

-altezza interna 3,5 m

-altezza sotto trave 3 m

-lunghezza interna 21 m

-larghezza interna 20,4 m

Caratteristiche: presente corrente elettrica

Accessibilità: accesso carraio fronte strada

Il paese di Roè Volciano è caratterizzato dall’essere attraversato da sud a nord dalla strada provinciale IV del Caffaro, arteria lungo la quale si svolge tutta la vita economica del posto. I negozi sono dislocati lungo il percorso e nelle vie adiacenti alla strada Provinciale: sono presenti negozi classici e moderni edifici della distribuzione moderna, dove è facile trovare anche soluzioni direzionali.

Mostra tutto

Nelle vicinanze

Trasporto pubblico Trasporto pubblico
Trasporto pubblico
990 m
Salò
2,8 Km
Ricariche auto elettriche Ricariche auto elettriche
Gardauno Bocciodromo di Salò
2,1 Km
DriWe SHO Hotel Bellerive
2,3 Km
Scuole Scuole
Scuole
720 m
Liceo Enrico Fermi
1,1 Km
Istituto Paritario Enrico Medi
1,6 Km
Scuola Secondaria di Primo Grado Gabriele D'Annunzio
1,9 Km
I.T.C.G. Cesare Battisti
2,1 Km
Farmacia Farmacia
Farmacia Rigattieri Dr. Stefano
970 m
Farmazia Dr. de Paoli
2,6 Km
Ospedali Ospedali
Ospedale di Salò
2,4 Km
Supermercati Supermercati
Despar
990 m
Supermercati
1,2 Km
Auchan
2,3 Km
LD
2,3 Km
Italmark
2,3 Km
Negozi Negozi
Il Cucciolo Abbigliamento
1,1 Km
Panificio Rugenini
1,1 Km
Alimentari
1,2 Km
Ellegi Service. Salute ed igiene sul lavoro
1,4 Km
Panificio Righetti Domenico
1,6 Km
Bar Bar
Caffè della piazza
940 m
Tacho Bar
960 m
Plaza Disco
1,5 Km
Feeling American Bar
1,9 Km
Da Mario
2,4 Km
Ristoranti Ristoranti
Seventh Pub
520 m
Giropizza Park
950 m
Pizzeria Bar Casalda
1,1 Km
Bar Trattoria Ricomilla
1,1 Km
La Taverna del Pozzo
1,2 Km
Mostra tutto

Caratteristiche

Rif.:
61030592
Piano:
Seminterrato
Condizionamento:
Assente
Ascensore:
No
Riscaldamento:
Assente
Libero:
Mostra tutto
Prezzo Prezzo
€ 220.000
Rata mutuo Rata mutuo
€ 1.038 / mese
Spese annue Spese annue
€ 0
Proponi il tuo prezzoProponi il tuo prezzo

Altre caratteristiche

Classe Energetica

Questo immobile è esente da classe energetica
Anno di costruzione:
1960
Riscaldamento:
Assente

Ti interessa visionare l'immobile?

Fissa un appuntamento  Fissa un appuntamento

Richiedi informazioni

Clicca su Leggi per aprire l'informativa
* Questi campi sono obbligatori

Calcola il tuo mutuo

Semplice e senza impegno
Anticipo

( % )
Mutuo

( % )

pochi semplici passi

inserisci i tuoi dati
Questionario completato
Grazie per aver richiesto un appuntamento senza impegno con un nostro Consulente del Credito e Assicurativo.

Hai inserito correttamente tutti i dati necessari e a breve riceverai una e-mail con un link da convalidare per inviare i tuoi dati.
Affiliato
Industriale Del Benaco Srl
Via Campagnola, 34/G 25080 Manerba Del Garda (BS)

Il nostro staff


  • Francesca Lanzini
    Affiliata

  • Francesco Bellicini
    Affiliato

  • Stefano Ghidini
    Affiliato

  • Asia Gussago
    Coordinatrice

  • Giorgia Majocchi
    Collaboratrice

  • Laura Primerano
    Coordinatrice

  • Susanna Vincenzi
    Collaboratrice
Via Campagnola, 34/G 25080 Manerba Del Garda (BS)
Zona: Moniga Del Garda-Salò-Limone del Garda-Nuvolera Alta-Val Sabbia
Mostra su mappa
Affiliato
Industriale Del Benaco Srl
Via Campagnola, 34/G 25080 Manerba Del Garda (BS)

2025 Tecnocasa Franchising S.p.A. - P. IVA 08365160152 - Via Monte Bianco 60/A 20089 Rozzano (MI). Ogni agenzia ha un proprio titolare ed è autonoma. Privacy policy | Policy utilizzo | Cookie policy