Deposito in affitto

Prevalle, Via Campi Grandi
€ 890 / mese
1 locale 1 locale
250 Mq 250 Mq
1 bagno 1 bagno

Deposito in affitto

Prevalle, Via Campi Grandi

Descrizione annuncio

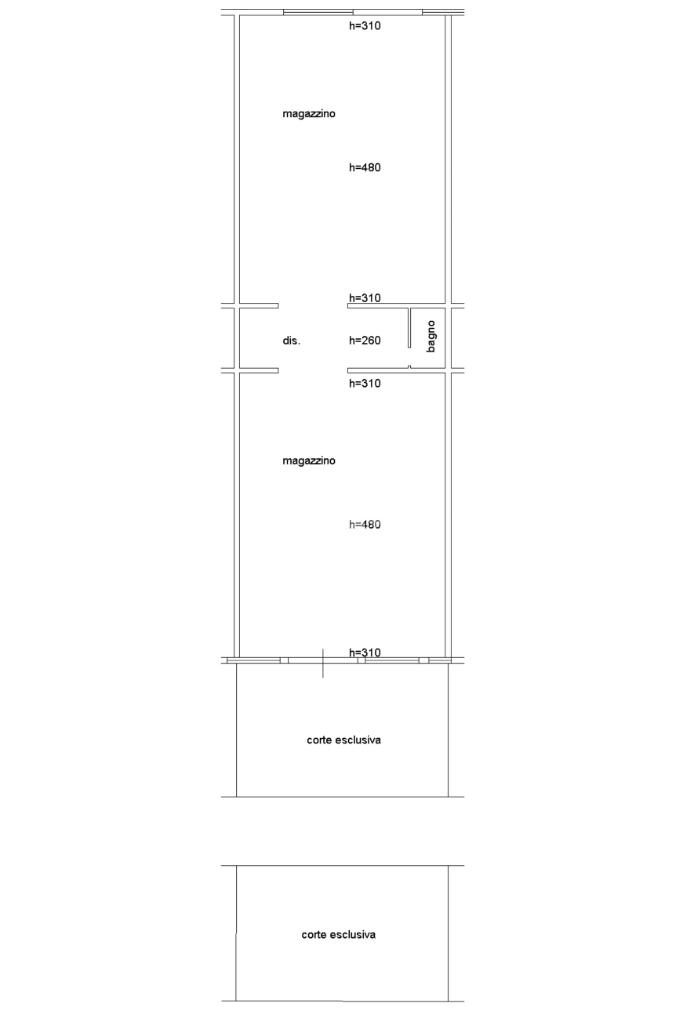
Proponiamo in locazione un deposito sito in Via Campi Grandi nel Comune di Prevalle.

La superficie complessiva è di circa 250 mq (8,9 m x 27,65 m) e presenta un’altezza interna di 3 m.

-area esterna in comune, servita da doppio accesso carraio, con possibilità di utilizzo di carroponte di portata da 32 q.

Impianti: dotato di impianto elettrico con prese 220 V

Servizi igienici: presente un servizio igienico con doccia.

Accessibilità: unico ingresso tramite portone (2,9 m x 2,7 m)

Canone di locazione: € 890,00/mese oltre IVA con pagamento bimestrale

Deposito cauzionale: tre mensilità

Disponibile dal 01/03/2026

L’immobile è accatastato come C/2 con possibilità di variazione di destinazione d’uso.

Il paese di Prevalle si trova sulla direttrice che dalla città di Brescia conduce alla Valle Sabbia ed alla zona del medio alto lago di Garda. Questo favorevole posizionamento, a soli quindici minuti di strada da Brescia, da Salò e Gavardo ha consentito lo sviluppo di un grande comparto produttivo che si estende dal paese verso la strada statale 45bis. La zona industriale è composta in gran parte da strutture degli ottanta e novanta anche se non mancano gli edifici recenti. Il poligono è attraversato da strade interne ampie ai lati delle quali sono stati predisposti innumerevoli parcheggi ed aree di sosta per automezzi.

Mostra tutto

Nelle vicinanze

Trasporto pubblico Trasporto pubblico
Trasporto pubblico
2,4 Km
Ricariche auto elettriche Ricariche auto elettriche
IVAR
1,1 Km
Scuole Scuole
Scuole
1,8 Km
Scuola Primaria
1,9 Km
Farmacia Farmacia
Farmacia Colla
960 m
Farmacia
1,3 Km
Supermercati Supermercati
IN's Mercato
1,5 Km
Bennet
2,9 Km
Negozi Negozi
Panificio Pasticceria Franzoni Roberto
1,4 Km
Ristoranti Ristoranti
Trattoria Antico Sapore
580 m
Antica Osteria Leone
1,5 Km
Antica Osteria Due Corone
1,5 Km
Agriturismo C'era Una Volta
2,4 Km
Ristorante Borgo alla Quercia
2,5 Km
Mostra tutto

Caratteristiche

Rif.:
61174780
Piano:
Terra di 1
Totale piani:
1
Posti auto:
10
Condizionamento:
Assente
Ascensore:
No
Mostra tutto
Prezzo Prezzo
€ 890 / mese
Spese annue Spese annue
€ 0

Altre caratteristiche

Descrizione dei locali
Bagno antibagno

Classe Energetica

Questo immobile è esente da classe energetica
Anno di costruzione:
1980
Riscaldamento:
Assente

Ti interessa visionare l'immobile?

Fissa un appuntamento  Fissa un appuntamento

Richiedi informazioni

Clicca su Leggi per aprire l'informativa
* Questi campi sono obbligatori
Affiliato
Industriale Del Benaco Srl
Via Campagnola, 34/G 25080 Manerba Del Garda (BS)

Il nostro staff


  • Francesca Lanzini
    Affiliata

  • Francesco Bellicini
    Affiliato

  • Stefano Ghidini
    Affiliato

  • Asia Gussago
    Coordinatrice

  • Giorgia Majocchi
    Collaboratrice

  • Laura Primerano
    Coordinatrice

  • Susanna Vincenzi
    Collaboratrice
Via Campagnola, 34/G 25080 Manerba Del Garda (BS)
Zona: Moniga Del Garda-Salò-Limone del Garda-Nuvolera Alta-Val Sabbia
Mostra su mappa
Affiliato
Industriale Del Benaco Srl
Via Campagnola, 34/G 25080 Manerba Del Garda (BS)

2026 Tecnocasa Franchising S.p.A. - P. IVA 08365160152 - Via Monte Bianco 60/A 20089 Rozzano (MI). Ogni agenzia ha un proprio titolare ed è autonoma. Privacy policy | Policy utilizzo | Cookie policy