 
			 
				Proponiamo in locazione un locale direzionale sito in Via Case Sparse Serraglie, nel comune di Manerba del Garda
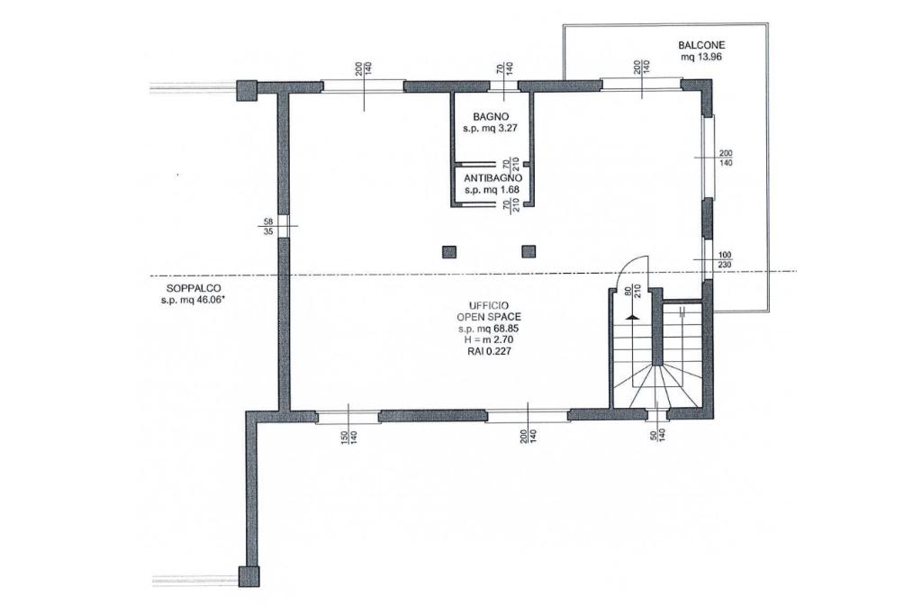
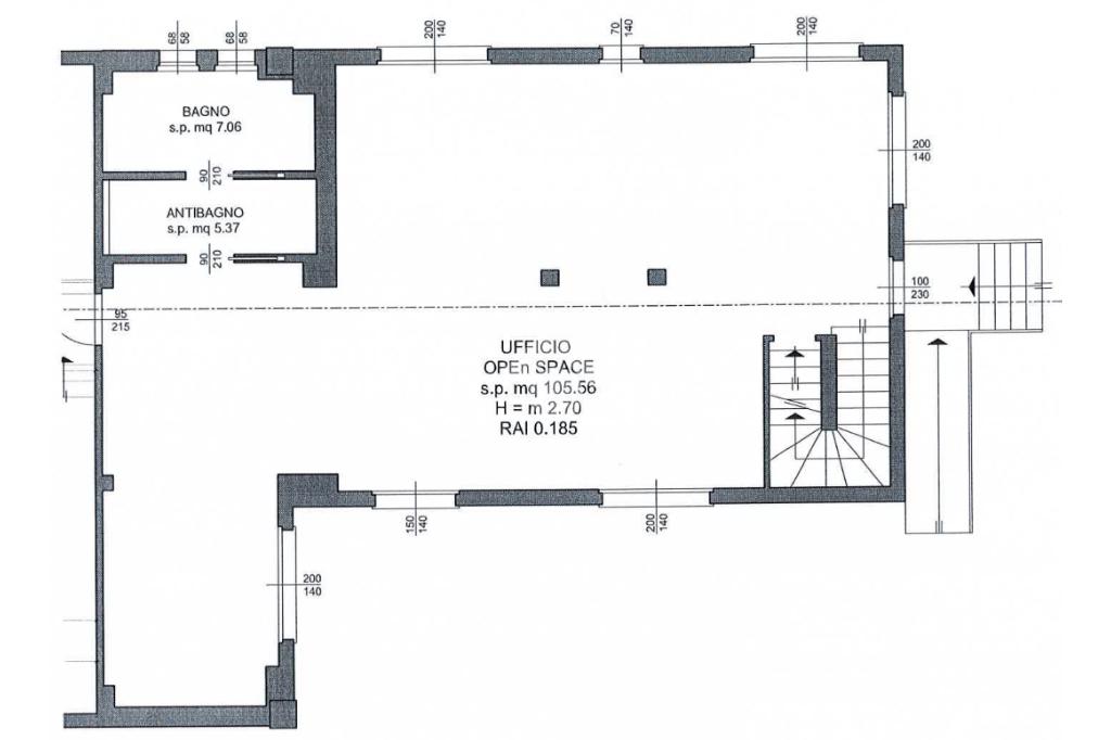
La superficie complessiva è di circa 283 mq disposta su tre livelli, così suddivisa:
-locale di 73,39 mq posto al piano interrato ad uso archivio e zona server
-locale ad uso direzionale di 118 mq posto al piano terra; allo stesso livello troviamo un locale di 18 mq ad uso archivio e un servizio igienico con antibagno
-ufficio di 73,80 mq posto al piano primo con servizio igienico e antibagno
Impianti: impianto di riscaldamento e raffrescamento tramite pompe di calore
-impianto di videosorveglianza e antifurto
-presente fibra
Accessibilità: presente area esterna di 768 mq ad uso parcheggio in comune con il capannone adiacente
-accesso carraio e pedonale indipendente
Canone di locazione: € 2.500,00/mese oltre IVA.
L’immobile viene locato totalmente arredato.
Il comune di Manerba del Garda è il più importante della zona, da anni è unanimemente riconosciuto come capitale della Valtenesi. La sua favorevole collocazione, a metà strada tra le città di Salò e Desenzano ha favorito uno sviluppo commerciale non riscontrabile nelle altre località della Valtenesi. Gli spazi commerciali della moderna distribuzione trovano la loro naturale collocazione lungo la strada statale dove sono presenti tutti gli operatori della GDO, mentre il commercio classico dispone del caratteristico scenario del centro storico e delle zone residenziali del paese.
Ti interessa visionare l'immobile?