Negozio in vendita

Manerba Del Garda, Via Campagnola - Crociale
€ 230.000
3 locali 3 locali
101 Mq 101 Mq
2 bagni 2 bagni

Negozio in vendita

Manerba Del Garda, Via Campagnola - Crociale

Descrizione annuncio

Proponiamo in vendita e reddito un locale commerciale sito in Via Campagnola nel comune di Manerba del Garda

Il locale è posto al piano terra di una palazzina sita fronte strada sulla provinciale che collega Cunettone di Salò a Desenzano del Garda.

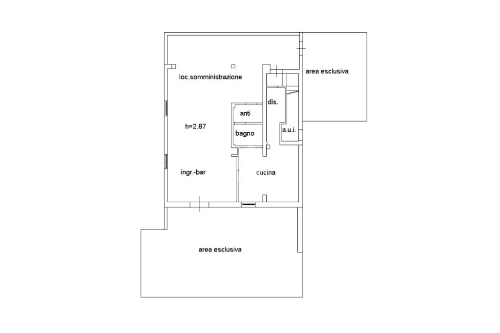
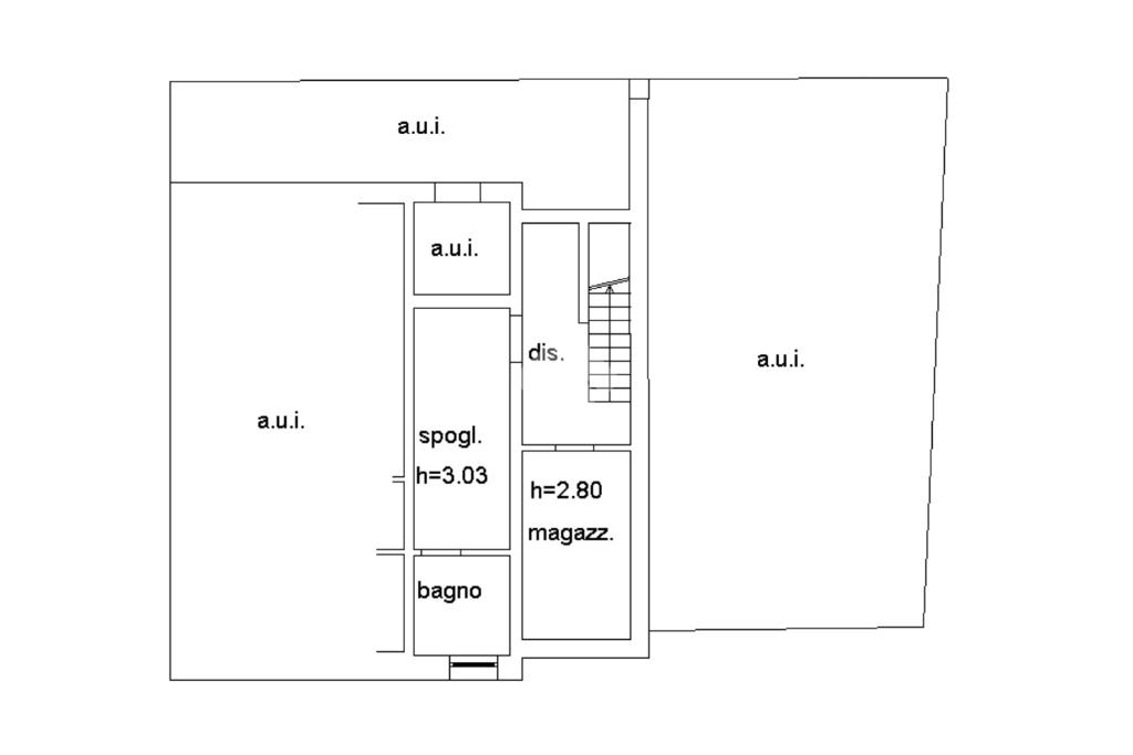
La superficie complessiva del locale è di 101 mq, disposta su due livelli:

-piano terra ad uso commerciale con servizio igienico per la clientela

-piano interrato ad uso magazzino con servizio igienico per i dipendenti

-il locale è inoltre dotato di veranda di proprietà

Impianti: presente impianto di riscaldamento e raffrescamento termoautonomo

Resa: attualmente l’immobile è locato ad un’attività di ristorazione, garantendo una resa annua pari al 6%.

Maggiori informazioni in agenzia.

Il comune di Manerba del Garda è il più importante della zona, da anni è unanimemente riconosciuto come capitale della Valtenesi. La sua favorevole collocazione, a metà strada tra le città di Salò e Desenzano ha favorito uno sviluppo commerciale non riscontrabile nelle altre località della Valtenesi. Gli spazi commerciali della moderna distribuzione trovano la loro naturale collocazione lungo la strada statale dove sono presenti tutti gli operatori della GDO, mentre il commercio classico dispone del caratteristico scenario del centro storico e delle zone residenziali del paese.

Mostra tutto

Nelle vicinanze

Trasporto pubblico Trasporto pubblico
Trasporto pubblico
140 m
Crociale
Crociale
400 m
Trasporto pubblico
2,4 Km
Manerba del Garda
2,9 Km
Ricariche auto elettriche Ricariche auto elettriche
LIDL Manerba del Garda
1,0 Km
Burger King Manerba del Garda
1,6 Km
Garduno Polpenazze
2,2 Km
Scuole Scuole
Scuole
1,7 Km
Scuola Media Statale 28 Maggio 1974
1,8 Km
Scuola Elementare
1,9 Km
Farmacia Farmacia
Farmacia Ottini
730 m
Farmacia
1,4 Km
Farmacia Comunale
2,0 Km
Supermercati Supermercati
EuroSpar
430 m
Lidl
1,0 Km
EuroSpin
1,6 Km
Penny
1,6 Km
Market Romantica
2,0 Km
Negozi Negozi
Negozi
330 m
Dandy
650 m
Kissimee
660 m
La Boutique del Pane
1,3 Km
Antonioli
1,4 Km
Bar Bar
Red Clubbing
1,8 Km
Ristoranti Ristoranti
La Gatta Sul Tetto
170 m
Dalie e Fagioli
520 m
Crociale
520 m
Osteria ai Colli
550 m
Osteria dei Poeti
640 m
Mostra tutto

Caratteristiche

Rif.:
61183837
Piano:
Terra di 3
Totale piani:
3
Posti auto:
10
Condizionamento:
Autonomo
Ascensore:
No
Mostra tutto
Prezzo Prezzo
€ 230.000
Rata mutuo Rata mutuo
€ 1.093 / mese
Spese annue Spese annue
€ 0
Proponi il tuo prezzoProponi il tuo prezzo

Altre caratteristiche

Descrizione dei locali
Bagno antibagno

Classe Energetica

Questo immobile è esente da classe energetica
Anno di costruzione:
1980
Riscaldamento:
Autonomo
Tipo impianto:
Ad aria
Tipo alimentazione:
Aria

Ti interessa visionare l'immobile?

Fissa un appuntamento  Fissa un appuntamento

Richiedi informazioni

Clicca su Leggi per aprire l'informativa
* Questi campi sono obbligatori

Calcola il tuo mutuo

Semplice e senza impegno
Anticipo

( % )
Mutuo

( % )

pochi semplici passi

inserisci i tuoi dati
Questionario completato
Grazie per aver richiesto un appuntamento senza impegno con un nostro Consulente del Credito e Assicurativo.

Hai inserito correttamente tutti i dati necessari e a breve riceverai una e-mail con un link da convalidare per inviare i tuoi dati.
Affiliato
Industriale Del Benaco Srl
Via Campagnola, 34/G 25080 Manerba Del Garda (BS)

Il nostro staff


  • Francesca Lanzini
    Affiliata

  • Francesco Bellicini
    Affiliato

  • Stefano Ghidini
    Affiliato

  • Asia Gussago
    Coordinatrice

  • Giorgia Majocchi
    Collaboratrice

  • Laura Primerano
    Coordinatrice

  • Susanna Vincenzi
    Collaboratrice
Via Campagnola, 34/G 25080 Manerba Del Garda (BS)
Zona: Moniga Del Garda-Salò-Limone del Garda-Nuvolera Alta-Val Sabbia
Mostra su mappa
Affiliato
Industriale Del Benaco Srl
Via Campagnola, 34/G 25080 Manerba Del Garda (BS)

2026 Tecnocasa Franchising S.p.A. - P. IVA 08365160152 - Via Monte Bianco 60/A 20089 Rozzano (MI). Ogni agenzia ha un proprio titolare ed è autonoma. Privacy policy | Policy utilizzo | Cookie policy