Magazzino in affitto

Gavardo, Via Ugo Vaglia
€ 3.500 / mese
4 locali 4 locali
893 Mq 893 Mq
2 bagni 2 bagni

Magazzino in affitto

Gavardo, Via Ugo Vaglia

Descrizione annuncio

Proponiamo in locazione un magazzino sito in Via Ugo Vaglia nel comune di Gavardo

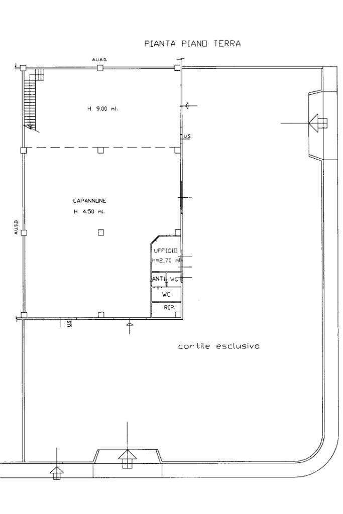
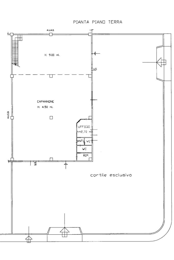
La superficie complessiva del magazzino è di 893 mq, così suddivisa:

- magazzino di 583 mq posto al piano terra

- blocco uffici di 310mq posto al piano primo

- area esterna pertinenziale di circa 1000 mq, servita da due accessi carrai e uno pedonale.

Il magazzino è suddiviso in tre blocchi:

- Il primo blocco ha una superficie di 310 mq con altezza sotto trave di 4.36 mt e al colmo di 5.06 mt. Dispone di due accessi carrai di 3.54mt x 4.91 mt. Sono presenti prese 220 e 380 Vt. È presente un ufficio in prefabbricato con servizio igienico e magazzino.

- Il secondo blocco ha una metratura di 133mq con altezza di 9,24 mt e un accesso carraio di 4.53mt x 4,58 mt. È presente un servizio igienico.

- Il terzo blocco ha una superficie di 140mq con altezza di 4.70 mt ed è collegato al secondo blocco.

Al primo piano troviamo la zona uffici di 310 mq, collegata direttamente da una scala interna dal piano terra con accesso pedonale indipendente.

Impianti: la zona uffici dispone di impianto di riscaldamento e raffrescamento a pompe di calore

Disponibilità: l’immobile è libero a partire dal 01/04/2025

Canone di locazione: non soggetto a IVA

Il comune di Gavardo ricopre da sempre un ruolo di assoluto rilievo nella Valle Sabbia e nella zona del medio alto lago di Garda, per la moltitudine di servizi pubblici e privati e per le innumerevoli attività commerciali che sono insediate sul territorio comunale.

Le opportunità immobiliari commerciali sono interessanti e sono dislocate lungo la strada provinciale, nella grande piazza dove ogni mercoledì mattina si svolge il frequentato mercato settimanale e nelle vie tutt’attorno alla piazza stessa.

Il favorevole posizionamento e la varietà di esercizi presenti consentono alle attività presenti di godere di un buon giro di clientela e di un soddisfacente volume d’affari, mentre gli uffici e studi professionali beneficiano dei numerosi e comodi parcheggi.

Mostra tutto

Nelle vicinanze

Trasporto pubblico Trasporto pubblico
Trasporto pubblico
550 m
Ricariche auto elettriche Ricariche auto elettriche
ALDI Villanuova Sul Clisi
1,8 Km
IVAR
2,0 Km
Scuole Scuole
Scuola Primaria di Secondo Grado Giuseppe Bertolotti
990 m
Scuole
2,5 Km
Scuola Primaria
2,5 Km
Scuola Primaria Don Milani
2,7 Km
Farmacia Farmacia
Farmacia
1,9 Km
Farmacia Comunale
2,5 Km
Ospedali Ospedali
Azienda Sanitaria Locale Gavardo
620 m
Ospedale di Gavardo
1,1 Km
Supermercati Supermercati
Bennet
220 m
Simply
520 m
Family Market
1,3 Km
IN's Mercato
1,6 Km
Lidl
1,6 Km
Bar Bar
Birillo
1,3 Km
Deja-vù
1,9 Km
Bar
1,9 Km
Bar One
2,7 Km
Ristoranti Ristoranti
Trattoria della Piazza Grande
940 m
agriturismo morso 46
970 m
Ristorante Girasole
1,2 Km
Agriturismo C'era Una Volta
1,3 Km
Ristorante Pizzeria Leon D'Oro
2,2 Km
Mostra tutto

Caratteristiche

Rif.:
61142684
Piano:
Su più livelli di 2
Totale piani:
2
Posti auto:
20
Condizionamento:
Autonomo
Ascensore:
No
Mostra tutto
Prezzo Prezzo
€ 3.500 / mese
Spese annue Spese annue
€ 0

Altre caratteristiche

Descrizione dei locali
Bagno antibagno

Classe Energetica

Questo immobile è esente da classe energetica
Anno di costruzione:
1980
Riscaldamento:
Autonomo
Tipo impianto:
Ad aria
Tipo alimentazione:
Aria

Ti interessa visionare l'immobile?

Fissa un appuntamento  Fissa un appuntamento

Richiedi informazioni

Clicca su Leggi per aprire l'informativa
* Questi campi sono obbligatori
Affiliato
Industriale Del Benaco Srl
Via Campagnola, 34/G 25080 Manerba Del Garda (BS)

Il nostro staff


  • Francesca Lanzini
    Affiliata

  • Francesco Bellicini
    Affiliato

  • Stefano Ghidini
    Affiliato

  • Asia Gussago
    Coordinatrice

  • Giorgia Majocchi
    Collaboratrice

  • Laura Primerano
    Coordinatrice

  • Susanna Vincenzi
    Collaboratrice
Via Campagnola, 34/G 25080 Manerba Del Garda (BS)
Zona: Moniga Del Garda-Salò-Limone del Garda-Nuvolera Alta-Val Sabbia
Mostra su mappa
Affiliato
Industriale Del Benaco Srl
Via Campagnola, 34/G 25080 Manerba Del Garda (BS)

2025 Tecnocasa Franchising S.p.A. - P. IVA 08365160152 - Via Monte Bianco 60/A 20089 Rozzano (MI). Ogni agenzia ha un proprio titolare ed è autonoma. Privacy policy | Policy utilizzo | Cookie policy