Ufficio in affitto

Gardone Riviera, Corso Giuseppe Zanardelli
€ 2.400 / mese
4 locali 4 locali
100 Mq 100 Mq
2 bagni 2 bagni

Ufficio in affitto

Gardone Riviera, Corso Giuseppe Zanardelli

Descrizione annuncio

Proponiamo in locazione un locale direzionale situato in Corso Giuseppe Zanardelli, nel comune di Gardone Riviera.

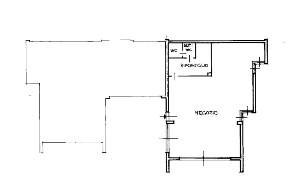
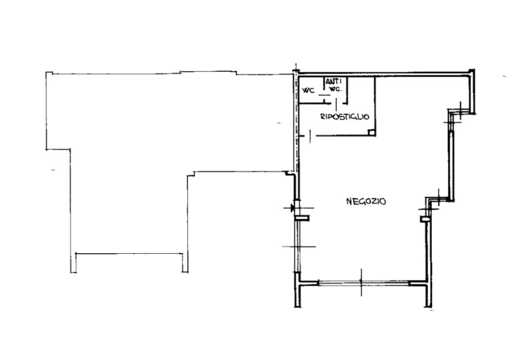
Superficie: la superficie complessiva del locale è pari a 100 mq, suddivisa in quattro stanze da pareti in cartongesso removibili. Sono inoltre presenti tre piccoli locali, di cui due ad uso magazzino e uno adibito a locale tecnico. Completa la soluzione un posto auto sito al piano interrato.

Il locale è dotato di due servizi igienici, di cui uno a norma disabili.

Impianti: l’immobile è dotato di impianto di riscaldamento e raffrescamento a fan coil e caldaia.

Spese condominiali: pari a circa € 100,00/mese, con conguaglio annuale e restituzione dell’eventuale differenza a fine anno.

Canone di locazione: € 2.400,00/mese oltre IVA.

Maggiori informazioni in agenzia.

Il Comune di Gardone Riviera rappresenta una delle perle verdi del lago di Garda, caratterizzato da edifici storici di notevole pregio e da un contesto paesaggistico di straordinaria bellezza. Situato sulla sponda occidentale del lago, tra le località di Toscolano Maderno e Salò, Gardone Riviera offre un lungolago suggestivo, ricco di bar, ristoranti e strutture ricettive. Lungo la Strada Statale 45 bis si trovano invece numerosi negozi e uffici, sia pubblici che presenza del celebre Vittoriale degli Italiani, dimora di Gabriele D’Annunzio, contribuisce a garantire un costante afflusso di visitatori durante tutto l’anno.

Mostra tutto

Nelle vicinanze

Trasporto pubblico Trasporto pubblico
Gardone Riviera
Gardone Riviera
200 m
Gardone Rivera
Gardone Rivera
310 m
Gardone
370 m
Fasano
1,7 Km
Ricariche auto elettriche Ricariche auto elettriche
Gardauno Gardone
330 m
Scuole Scuole
Scuola Primaria di Gardone Riviera
410 m
Scuola Secondaria di Primo Grado Giovanni XXIII
430 m
Istituto Alberghiero IPSSAR De Medici
470 m
Farmacia Farmacia
Farmacia Internazionale
370 m
Farmacia
2,7 Km
Ospedali Ospedali
Casa di Cura Villa Gemma
970 m
Supermercati Supermercati
Spar
1,2 Km
Negozi Negozi
Negozi
370 m
Abbigliamento Lori di Ferrara Laura
1,6 Km
Bar Bar
Pianobar La Torre
310 m
Rosetta
380 m
Adria
410 m
Casinò Lounge
590 m
Carta Bianca
2,7 Km
Ristoranti Ristoranti
La Terrazza
230 m
Ristorante Atelier del Gusto
290 m
Wimmer
330 m
Emiliano’s
340 m
Osteria Antico Brolo
360 m
Mostra tutto

Caratteristiche

Rif.:
61164139
Piano:
Terra di 2
Totale piani:
2
Posti auto:
5
Condizionamento:
Autonomo
Ascensore:
No
Mostra tutto
Prezzo Prezzo
€ 2.400 / mese
Spese annue Spese annue
€ 1.200

Altre caratteristiche

Descrizione dei locali
Bagno antibagno

Classe Energetica

Questo immobile è esente da classe energetica
Anno di costruzione:
1980
Riscaldamento:
Autonomo
Tipo impianto:
Ad aria
Tipo alimentazione:
Aria

Ti interessa visionare l'immobile?

Fissa un appuntamento  Fissa un appuntamento

Richiedi informazioni

Clicca su Leggi per aprire l'informativa
* Questi campi sono obbligatori
Affiliato
Industriale Del Benaco Srl
Via Campagnola, 34/G 25080 Manerba Del Garda (BS)

Il nostro staff


  • Francesca Lanzini
    Affiliata

  • Francesco Bellicini
    Affiliato

  • Stefano Ghidini
    Affiliato

  • Asia Gussago
    Coordinatrice

  • Giorgia Majocchi
    Collaboratrice

  • Laura Primerano
    Coordinatrice

  • Susanna Vincenzi
    Collaboratrice
Via Campagnola, 34/G 25080 Manerba Del Garda (BS)
Zona: Moniga Del Garda-Salò-Limone del Garda-Nuvolera Alta-Val Sabbia
Mostra su mappa
Affiliato
Industriale Del Benaco Srl
Via Campagnola, 34/G 25080 Manerba Del Garda (BS)

2026 Tecnocasa Franchising S.p.A. - P. IVA 08365160152 - Via Monte Bianco 60/A 20089 Rozzano (MI). Ogni agenzia ha un proprio titolare ed è autonoma. Privacy policy | Policy utilizzo | Cookie policy